Mặt bằng phòng ngủ master là một thuật ngữ khá xa lạ đối với nhiều người trên thế giới, tuy nhiên hiện nay rất nhiều gia đình khi xây biệt thự đẹp có nhu cầu về cách bố trí phòng ngủ master để tạo nên tính tiện nghi và không gian riêng tư phục vụ cho nhu cầu sống.
Mục Lục
Cùng tìm hiểu mặt bằng phòng ngủ master là gì
Mặt bằng phòng ngủ Master (còn có tên gọi khác là sơ đồ mặt bằng của phòng ngủ chính) rất đa dạng. Bao gồm một phòng ngủ đơn giản với giường ngủ và tủ quần áo hay là cho đến các phòng phức tạp hơn bao gồm phòng ngủ, tủ quần áo, phòng thay đồ, phòng tắm chính và có thể thêm một số không gian để ngồi và uống trà (cũng có thể là văn phòng).

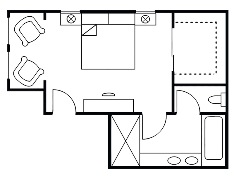
Mặt bằng phòng ngủ Master cùng với lối vào thẳng phòng ngủ
Kiểu bố trí tổng thể này không lãng phí không gian khi lưu thông nhiều không gian khác nhau. Nhược điểm chính của kiểu bố trí này chính là chỉ một người có thể đi vào phòng tắm hoặc phòng thay đồ và đóng cửa để tránh làm phiền người khác trong phòng
Lối vào phòng ngủ rồi đến hai cửa tủ và phòng tắm
Không có khoảng không gian nào bị phí phạm và khoảng không gian xung quanh giường trông khá tốt khi có các khoảng lưu thông. Ngoài ra sẽ không có cửa ở gần giường, có thể dễ dàng thay đổi những cánh cửa đôi, thay vào đó một cánh cửa duy nhất ở phía cuối giường.
Bàn trang điểm ngay chân giường, có nhiều không gian cho nó nhưng chúng tôi thực sự không thích việc bố trí gương xung quanh giường, nhưng sẽ tùy theo ý của bạn.
Sự lưu thông cũng hoạt động tốt trong sơ đồ này. Lưu ý rằng cánh cửa tủ quần áo được đặt hơi lệch để có thể bảo vệ một mảng tường đẹp và giúp chúng không bị gián đoạn ở chân giường.
Lối đi vào giường ngủ dẫn đến cửa tủ và phòng tắm
Lối đi thẳng vào phòng ngủ sau đó một cánh cửa dẫn đến tủ quần áo không có cửa ngăn dẫn đến phòng tắm chính.
Bản vẽ này có ưu điểm là phòng vệ sinh cách phòng ngủ một khoảng đẹp nên có thể giảm tránh được nhiều vấn đề. Mặt khác, đó là một khoảng cách dài để đi vệ sinh.
Ngoài ra một phần của bức tường đến phòng tắm và cửa vào nhà vệ sinh, có thể là kính mờ hoặc kính khắc để ánh sáng để ta có thể xuyên qua phòng tắm.
Lối vào phòng ngủ rồi sau đó đến cửa phòng tắm dẫn đến tủ quần áo
Lối vào thẳng phòng ngủ, sau đó có một cánh cửa dẫn đến phòng tắm chính và tủ quần áo mà lại không có cửa ngăn.
Nếu tủ quần áo được bố trí trực tiếp từ phòng tắm, hãy chắc rằng đường ấy không đi qua khu vực có nhiều ẩm ướt. Ta thấy được lối đi từ phòng ngủ đến tủ quần áo qua phòng tắm giúp ta tránh khu vực ẩm ướt của vòi hoa sen.
Bàn trang điểm nên được nằm ở trong phòng thay đồ chứ không phải là nằm trong phòng ngủ. Như vậy có nghĩa bạn có thể dùng máy sấy tóc mà không gây ra quá nhiều tiếng ồn.
Như vậy khá hữu ích khi có người lấy quần áo đi vào phòng tắm và thay quần áo, sau đó rời đi một cách yên lặng mà không làm phiền đến người còn lại trong phòng.
Mặt bằng phòng ngủ chính với lối để vào tiền sảnh
Lối vào tiền sảnh dẫn đến phòng ngủ và cả phòng tắm
Lối vào tiền sảnh sau đó ta có một cửa dẫn đến phòng ngủ và một cửa khác dẫn đến phòng tắm. Bàn trang điểm nên ở tiền sảnh này.
Lối vào tiền sảnh đến phòng ngủ, tủ quần áo và đến phòng tắm
Lối vào tiền sảnh sau đó ta có một cánh cửa để dẫn đến phòng ngủ, một cánh cửa dẫn đến tủ quần áo không có cửa ngăn, một cửa khác dẫn đến phòng tắm chính.
Lối vào là tiền sảnh đến cửa phòng tắm
Cách sắp xếp này sử dụng không gian khá hiệu quả. Một cổng vòm hoặc một bức trần giảm dần xuống trên giường có thể tạo bảo giác như một hốc tường.
Lối vào tiền sảnh rồi đến cửa phòng ngủ và cửa phòng tắm và tủ quần áo
Đây là một kế hoạch cho sàn phòng ngủ chính khác hơn, Với không gian này, tôi muốn bố trí phòng thay đồ trước phòng tắm.

Bản vẽ sơ đồ mặt bằng phòng ngủ master
Các khả năng khác xảy ra
Có thể thêm phòng tắm riêng vào phòng ngủ
Bạn có thể muốn thêm một phòng tắm riêng vào không gian hiện có hoặc sử dụng một không gian bên cạnh phòng ngủ chính, chẳng hạn như một phòng ngủ nhỏ hơn để ta thêm một phòng tắm và tủ quần áo.
Tắm trong phòng ngủ
Một phòng ngủ với tủ quần áo, trong đó có phòng tắm chính với nhà vệ sinh, và một phần của bồn tắm trong phòng ngủ. Điều này có nghĩa là việc tắm vòi sen thiết thực hằng ngày hơn.
Những điều cần chú ý trong việc thiết kế phòng ngủ Master
Cũng như những nguyên tắc thiết kế phòng ngủ tốt, khi thiết kế phòng ngủ master ta cần lưu ý như sau:
- Hãy chú ý những cánh cửa. Cũng như lối vào các dãy phòng ngủ chính, đôi khi ta nên có thêm hai cửa. Đảm bảo rằng các vị trí của cửa và các đồ nội thất đều hoạt động cùng nhau.
- Một hành động thường bị quên lãng trong thiết kế phòng ngủ chính là nơi diễn ra các hoạt động làm đẹp…một khu vực dành riêng cho hoạt động này sẽ đặc biệt hơn là phải ngồi ở bàn trang điểm.

Phòng ngủ master đẳng cấp
Kết luận
Mặt bằng phòng ngủ master hiện nay rất đa dạng về cả quy mô và phong cách kiến trúc để tạo nên sự độc đáo, lạ mắt cho không gian sống và theo mong muốn của chủ đầu tư. Hi vọng bài viết trên có thể giúp ích bạn trong việc lựa chọn và xây dựng phòng ngủ đẳng cấp và hiện đại.





